
The Most Trusted Estimating Takeoff Solution. Thousands of construction professionals have reduced costs, saved time, and improved their accuracy using On-Screen Takeoff® (OST), the unparalleled industry standard for takeoff software.
Vendor
ConstructConnect
Company Website




Overview
The Most Trusted Estimating Takeoff Solution. Thousands of construction professionals have reduced costs, saved time, and improved their accuracy using On-Screen Takeoff® (OST), the unparalleled industry standard for takeoff software.
Trust the Takeoff
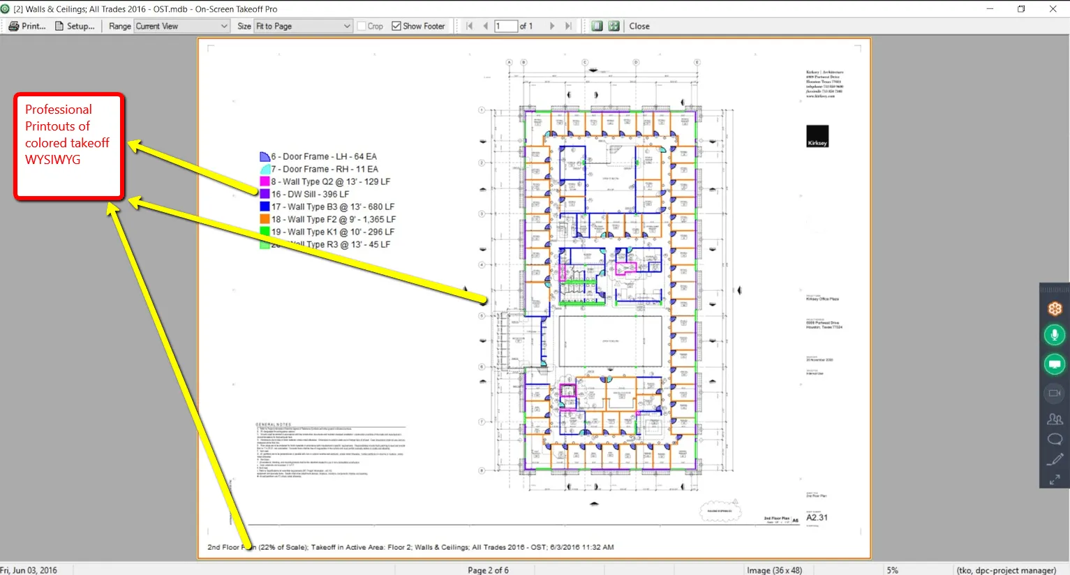
If you are a pro at manual takeoff, On-Screen Takeoff (OST) will seem natural to you. It’s construction software that thinks the way you do, only faster. Calculate results for a wide variety of trades simply by clicking and dragging your mouse. OST automatically saves your results, which can be printed and exported for reference and for sharing with colleagues
Reduce Errors and Rework
Rework eats up to 20% of the cost of the average construction project. OST allows you to process last-minute plan addendums or revised Change Orders right before Bid Day to ensure your workflow is as accurate and streamlined as possible. It gives you detailed backup on changes to scope, helping to eliminate future warranty claims.
Key Features
Multi-Condition Takeoff Our exclusively patented tool. Cut down on repetition! You can select any number of conditions and draw the takeoff for all of them at the same time, which means you can complete an entire room in only a few clicks. Typical Takeoff Tools OST includes powerful takeoff tools such as Typical Areas, Typical Groups, and Typical/Repeating Pages that reduce the monotony of taking off similar sections of a project. Auto Count Objects, Annotations, and Callouts This feature utilizes bitmap/pixel scanning and allows you to count out objects of the same shape and size within the drawings. Point, Click and Drag Walls, doors, sidings, windows, and more. You name it, and OST can take it off. OST provides your estimators with powerful takeoff tools, designed by industry experts to improve your efficiency, increase your accuracy, and save you time. Overlay Save hours of exhausting manual plan review with On-Screen Takeoff’s overlay feature. When comparing two versions of a drawing, what’s being removed in the new version is displayed in red and what’s being added is displayed in blue, making it easy to spot differences and make changes. Styles & Templates Streamline project setup by saving frequently used conditions as styles. Combine styles into sets organized by CSI Division, trade, or discipline to drop multiple conditions into future bids with ease. Auto Name We developed an Auto Name tool that provides fast and accurate results. No need to use another app to rename your pages or spend hours renaming them manually; let OST do it for you in seconds.